Introduction of Double Trolley Hook Overhead Crane
This versatile overhead crane is engineered with two independent trolleys that can operate together or individually. It is ideal for transporting lengthy items—such as timber, paper tubes, pipes, and metal bars—in factory workshops, mining sites, or outdoor storage areas. Power to the main beam is delivered via rigid angle steel or flexible safety slide wire systems. Operators can control the crane from an enclosed or open cab, from the ground using a pendant, or via remote control.
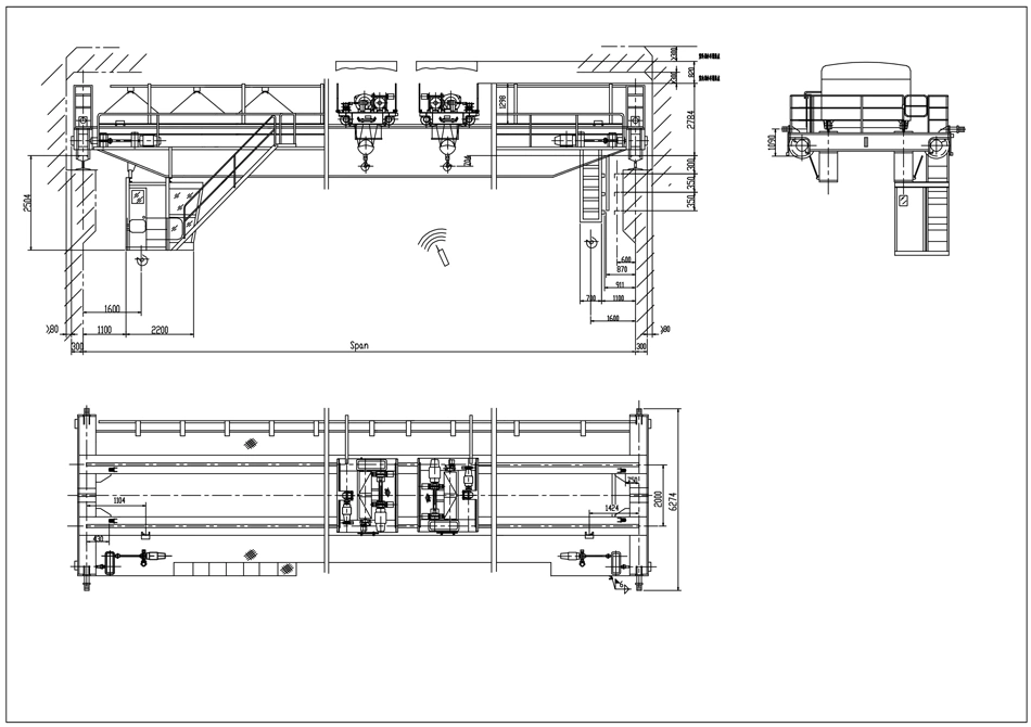
Key structural components include a robust main girder, durable end carriages, high-performance hoist trolleys, and a fully integrated electrical and control system.
A range of lifting attachments is available—including hooks, grabs, electromagnets, or custom tools—to match your specific application. We also supply compatible rail and power supply systems upon request.
Features of Double Trolley Hook Overhead Crane

Safety & Reliability
Every crane is equipped with multiple safety mechanisms:
Overload protection system
Emergency braking function
Thermal and current protection for the main hoist motor
Safety latches on hooks
Rubber bumpers for smooth travel limits
Limit switches for both lifting and traversing motions
Each unit undergoes rigorous pre-delivery testing and comes with a test certification.
Technical Parameters of Double Trolley Hook Overhead Crane
Lifting Weight: 5 + 5t; 10t + 10t,16 + 16t,20 + 20t,50 + 50t,200 + 200t…
Span: 10.5-31.5m or customized
Lifting Height: 6m, 9m, 12m 16m or customized
Work Class: A5,A6
Raged voltage: Three-phase AC 380V 50HZ

Customization Options
We specialize in designing cranes tailored to your operational requirements. To help us prepare a suitable solution, please share the following details:
Required lifting capacity
Crane span (including any cantilever length)
Lifting height (from hook center to floor)
Voltage and power supply specifications
Rail requirements and total crane travel distance
Working environment details: materials handled, ambient temperature, etc.
If available, please provide facility drawings for precise planning.
After-Sales Support
Warranty: All cranes are covered by a one-year warranty. Defects resulting from normal operation will be addressed with free replacement parts.
Post-Warranty: After the warranty period, we continue to support your crane with spare parts supplied at cost price.


